Transformer pour accueillir

Programme transformation de trois lieux, la clairière, La Collinière et l’ancienne écurie
Maître d’ouvrage Castel Camping du Brévedent
Lieu Centre Hippique du Brévedent
Année 2024-
Mission complète
Statut en cours

L’aménagement du centre équestre du Brévedent est le dernier projet de notre collaboration avec le castel Camping le Brévedent. Les propriétaires ont acquis ce centre qui se situe sur la plaine au dessus du camping, sur la limite avec la forêt du coteau. L’activité jouit d’une situation très favorable, avec de grands herbages, des arbres très anciens mais les installations datant des années 70 nécessitent une réhabilitation. Pour soutenir cet effort et pérenniser l’activité, le projet de la maîtrise d’ouvrage est d’associer a l’offre sportive une offre d’hébergements, au plus près des chevaux.

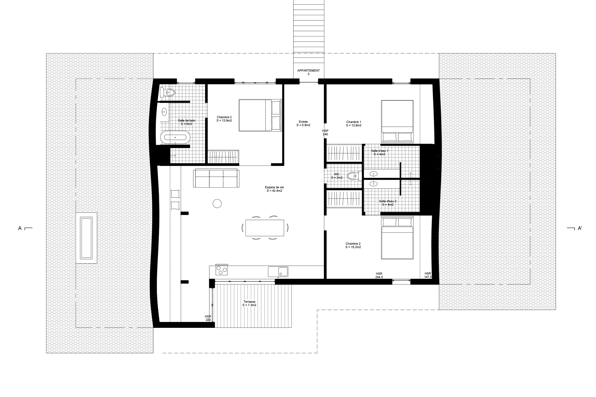
Trois lieux sont transformés : la clairière accueille douze huttes, La Collinière devient une maison de vacances avec trois appartements, trois chambres et un spa, et l’ancienne écurie des poneys est réaménagée en accueil-café.

En haute saison, ce seront pres de 70 personnes qui dormiront a côté des 30 chevaux. Ce projet est d’abord un projet de flux et d’aménagement. Il s’agit de préserver l’équilibre fragile entre les cavaliers et les chevaux en ménageant une distance suffisante entre l’activité équestre et les résidents. Mais il s’agit aussi de fonder cette occupation humaine du terrain, penser les lieux partagés, les chemins et les abris.

Vue sur le clubhouse depuis La Collinière

Plan masse (1. La Collinière ; 2. La clairière ; 3. L'ancienne écurie transformée en Clubhouse)

Plan du dernier étage de La Collinière

Coupe du dernier étage de La Collinière

Entrée du centre équestre 

Vue sur le futur clubhouse depuis La Collinière

La Collinière 

Intérieur du clubhouse, anciennes écuries rénovées