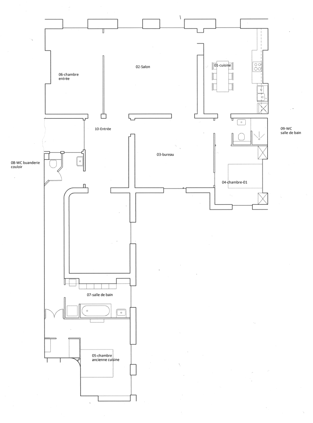
Appartement hausmanien

Programme Projet et ammeublement d'un appartement pour le louer
Maître d’ouvrage privé
Lieu rue du Than, Paris
Année 2018
Mission complète
Statut réalisé

Aménagement et ameublement d’un appartement pensé pour la location. Le projet valorise les éléments existants, comme le carrelage conservé pour le projet.

Une mise aux normes complète accompagne cette transformation afin d’adapter le logement aux usages contemporains.