Habiter le Houlme

Programme Concours d’idées Conforts 2050 : réadapter l’habitat aux climats
Maître d’ouvrage 3F
Lieu Le Houlme, Normandie
Année 2025

Depuis le Grenelle de l’environnement, on a constaté que les solutions énergétiques concernant les constructions neuves ne fonctionnaient pas sur l’existant. Le concours invitait donc à imaginer de nouvelles façons d’intervenir sur le bâti existant pour anticiper le climat en 2050. Une des études de cas de ce concours portait sur la réhabilitation d’ un ensemble de logements des Trente Glorieuses, « Le Parc », au Houlme.

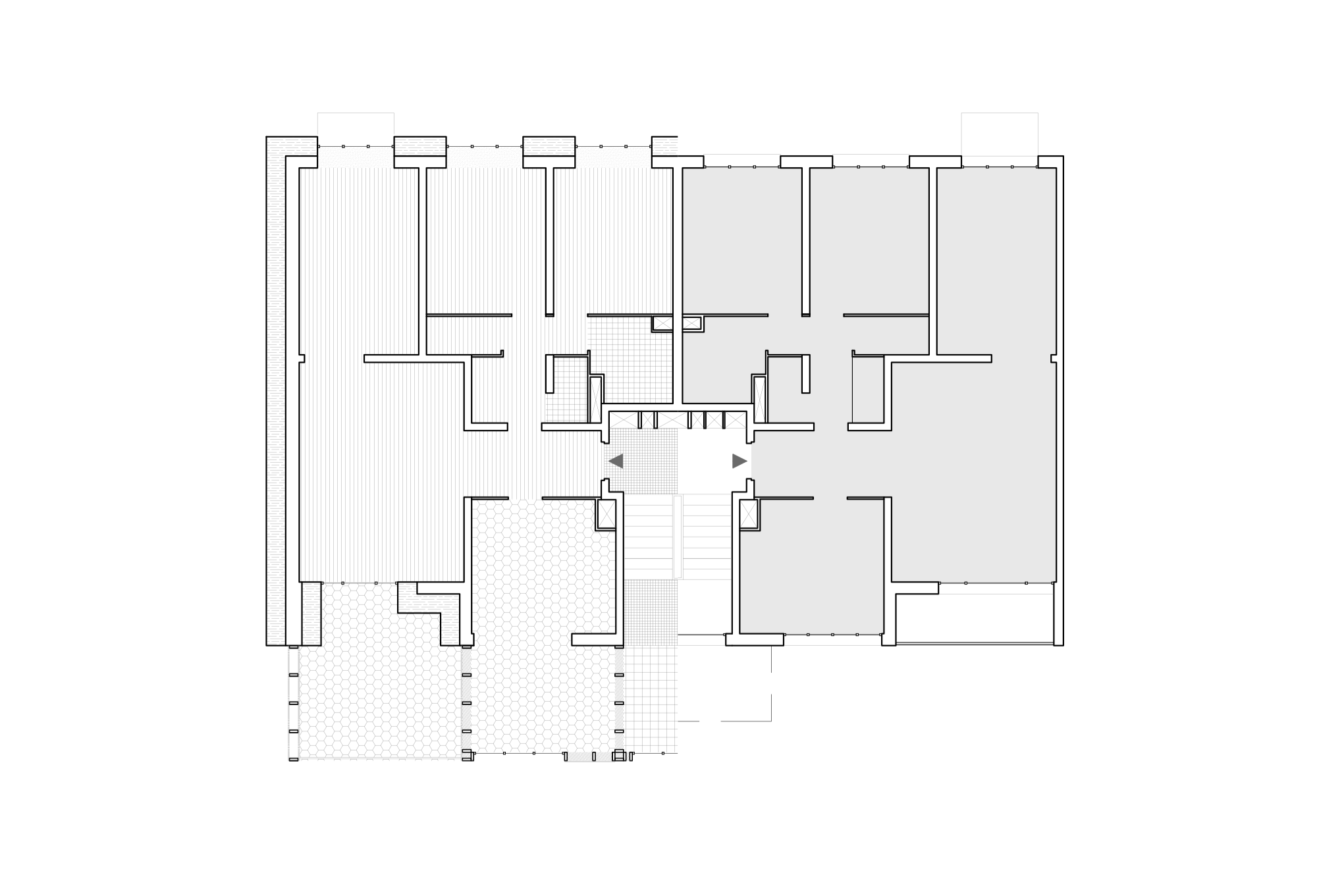
Dès le chantier, le parc devient un lieu vivant où les habitants peuvent s’impliquer. On mobilise les ressources locales (argile, paille, briques) et les espaces libres pour fabriquer des façades hors-site qui enveloppent les bâtiments d’une double peau. Ainsi, chaque façade est pensée différemment : bois et brique pour les espaces de jour, terre et paille pour la nuit. Deux logiques constructives qui répondent aux usages et au climat.

Au final, un quotidien transformé : du confort thermique, des espaces qui s’adaptent à leurs habitants, et une architecture qui dialogue avec son paysage.

Plan masse

Coupe paysagère

Coupe

Coupe

Plan - après / avant  

Façade brique - après / avant

Façade terre paille - avant / après 

Croquis